Retour aux annonces

ROSSET & Cie

CAROUGE
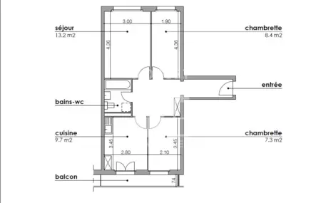
L'appartement est composé comme suit : une entrée avec une armoire encastrée, un séjour, 2 chambrettes, une cuisine agencée, non équipée, une salle de bains avec WC et un balcon. Bouilleur individuel.
L'immeuble est équipé d'un ascenseur, d'un digicode et d'une buanderie commune.
VISITE GROUPEE ET UNIQUE LE MERCREDI 1er AVRIL 2026 A 11H30, DIRECTEMENT SUR PLACE, SANS RENDEZ-VOUS PREALABLE. MERCI DE RESPECTER L'HORAIRE.


Voir l'annonce originale

Connectez-vous ou inscrivez-vous avec Facebook!

Vous allez recevoir un email avec un lien pour changer votre mot de passe

S'inscrire

Un des champs n'est pas valide
Un de champs n'est pas valide.

Oublié votre mot de passe?